Cookies

Utilizamos cookies propias y de terceros para mejorar nuestros servicios.

Volver

Casa 3 Amb en Venta, con Quincho y Terraza Refaccionada Lomas del Mirador

$ 158.000,00

Descripción

usd158000.-

IMPECABLE CASA TIPO AMERICANA – TOTALMENTE RECICLADA EN 2015
¡Lista para mudarse! Todo en planta baja, funcional, luminosa y con espacios generosos.

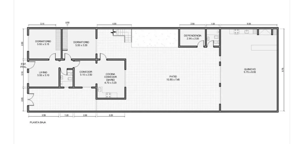
Esta espectacular propiedad combina diseño moderno, funcionalidad y potencial de expansión. Se encuentra desarrollada íntegramente en planta baja y fue reciclada a nuevo en 2015, lo que garantiza instalaciones actualizadas y un estilo contemporáneo.
Características principales:
2 Dormitorios amplios con placards empotrados de piso a techo.
Espacio de cocina, comedor y living integrado tipo concepto abierto, ideal para disfrutar en familia o con amigos.
2 baños completos, cómodos y modernos.
Pisos de cerámica en todos los ambientes, fáciles de mantener y de excelente calidad.
Garage cubierto para 2 autos o una camioneta grande, con portón mecánico manual.
Exterior y comodidades adicionales:
Enorme patio, perfecto para disfrutar al aire libre.
Quincho con capacidad para 40 personas, cuenta con instalación de gas. ¡Ideal para eventos y reuniones!
Estructura del quincho preparada para construir hasta 3 pisos más (a confirmar por estudio de ingeniería civil).
Lavadero exterior independiente.
Cuarto de guardado, caldera eléctrica y bomba presurizadora para garantizar excelente presión de agua.
Terraza amplia, del mismo tamaño que la planta de la casa. ¡Un verdadero plus!
Confort garantizado todo el año:
Tiro balanceado en todos los ambientes para calefacción eficiente.
Aire acondicionado en todos los ambientes.
Una propiedad sólida, funcional, con detalles pensados para el confort diario y además ¡con gran potencial de ampliación
¿Querés agendar una visita? ¡No dejes pasar esta oportunidad!